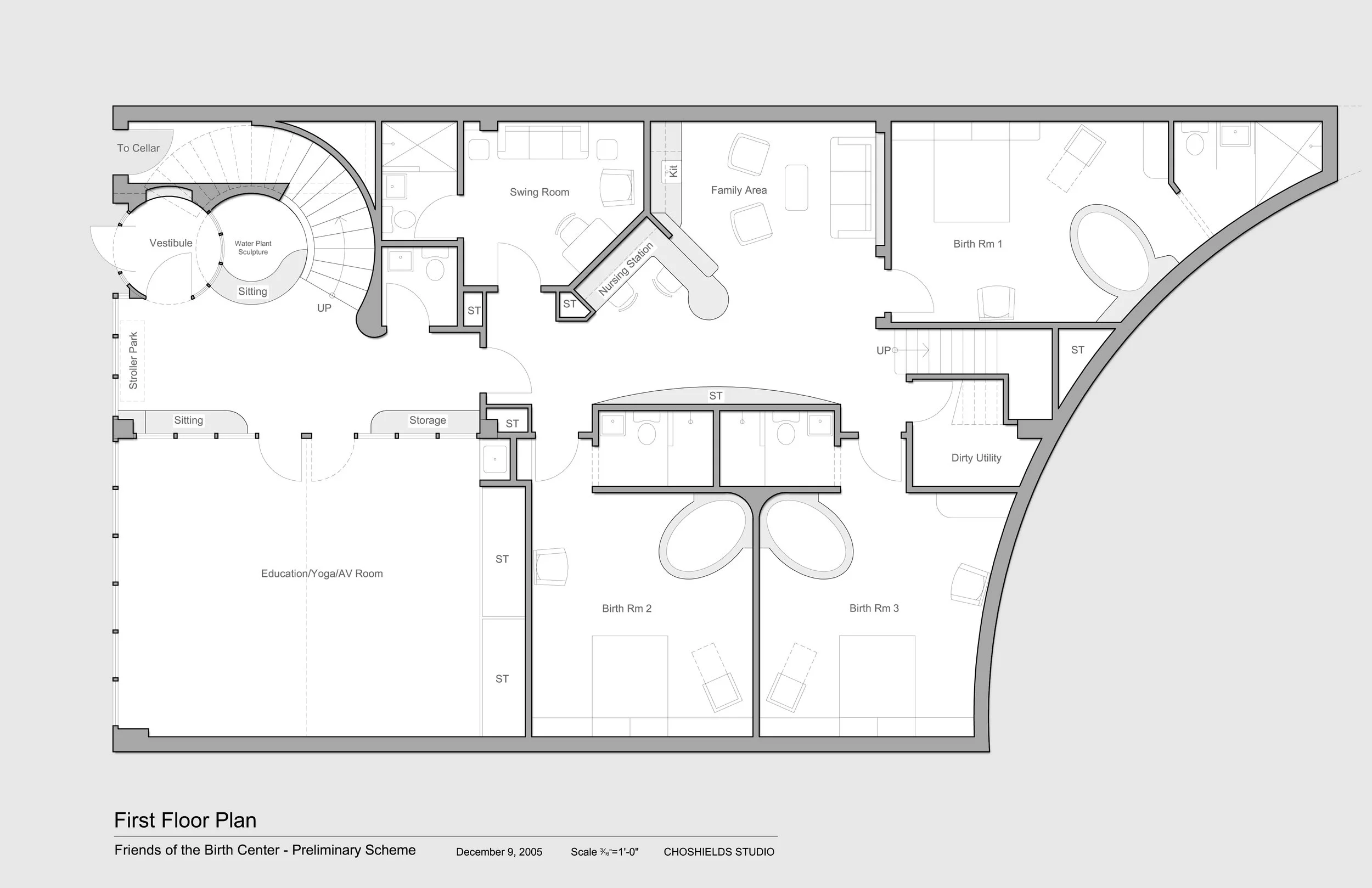
Feasibility study for planned free-standing birth center. Complex programming of public uses adjacent to private ones in an existing building shell. Yoga center, birthing rooms, nurse station, utility rooms and all support programs on ground floor; reception, administrative offices, exam rooms, labs, and support programs, and education and media room on the second floor. Layout integrates all necessary programming and functions into the very constrained available square footage.

